Novostavba RD ve Velkém Borku. Na začátku byla myšlenka nějak využít rozpadlé stodoly a zakomponovat do ní moderní dřevostavbu.
Udělala se základní studie a začalo se stavět.
ZÁKLADNÍ INFORMACE:
Termín realizace: 06/2020 - 01/2021
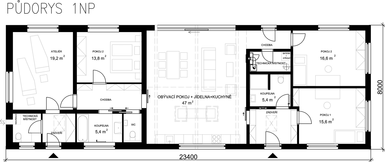
Disozice: 4+KK
Zastavěná plocha: 187,00 m2
Užitná plocha: 154,1 m2
Konstrukční systém: dřevěná část - roubená, Zděná část - tvárnice ytong 450mm
Okna: hliníkové, izolační trojskla (RI OKNA)
Vytápění: podlahové elektrické
Větrání: řízené se zpětným získáváním tepla (REKUPERACE JABLOTRON)